zen-office

各種基板の表面に真空圧力下で機能膜をコーティングする設備設計技術テーマに挑戦してきました。三橋善之事務所へようこそ
三橋 善之(みつはしよしゆき、Mitsuhashi Yoshiyuki)です。
【経歴】
- 1977 早稲田大学 理工学部 機械工学科卒 土屋喜一教授研究室(計測制御)
- 1977-1980 横河電機製作所(株):機械量物理量 計測
- 1980-1985 ULVAC :真空設備設計(Sputtering,Dry Etching)
- 1985-1999 旭硝子(株):エンジニアリング部門(ガラス系)要素技術開発・設備開発・成膜工程設計
- 2000-2010 (株)イリス :ドイツ産業機械商社 K.K. IRISU アジア顧客対応真空技術統合マーケッティング
- 2010- 三橋善之事務所 設立: 技術動向調査・成膜設備構想コンサルティング
サービスのご案内
設備構想3Dイラスト作成






設備構想イラスト




手描き又は3D-CADでアウトプットイメージを作成します。次ステップの為に、詳細設計・製作図作成可能なレベルにします。アイディア、構想した具体的な機能を図解しています。図解作業によって課題を視覚化し、代替案を呼び込み、完成度を上げます。




技術テーマ調査

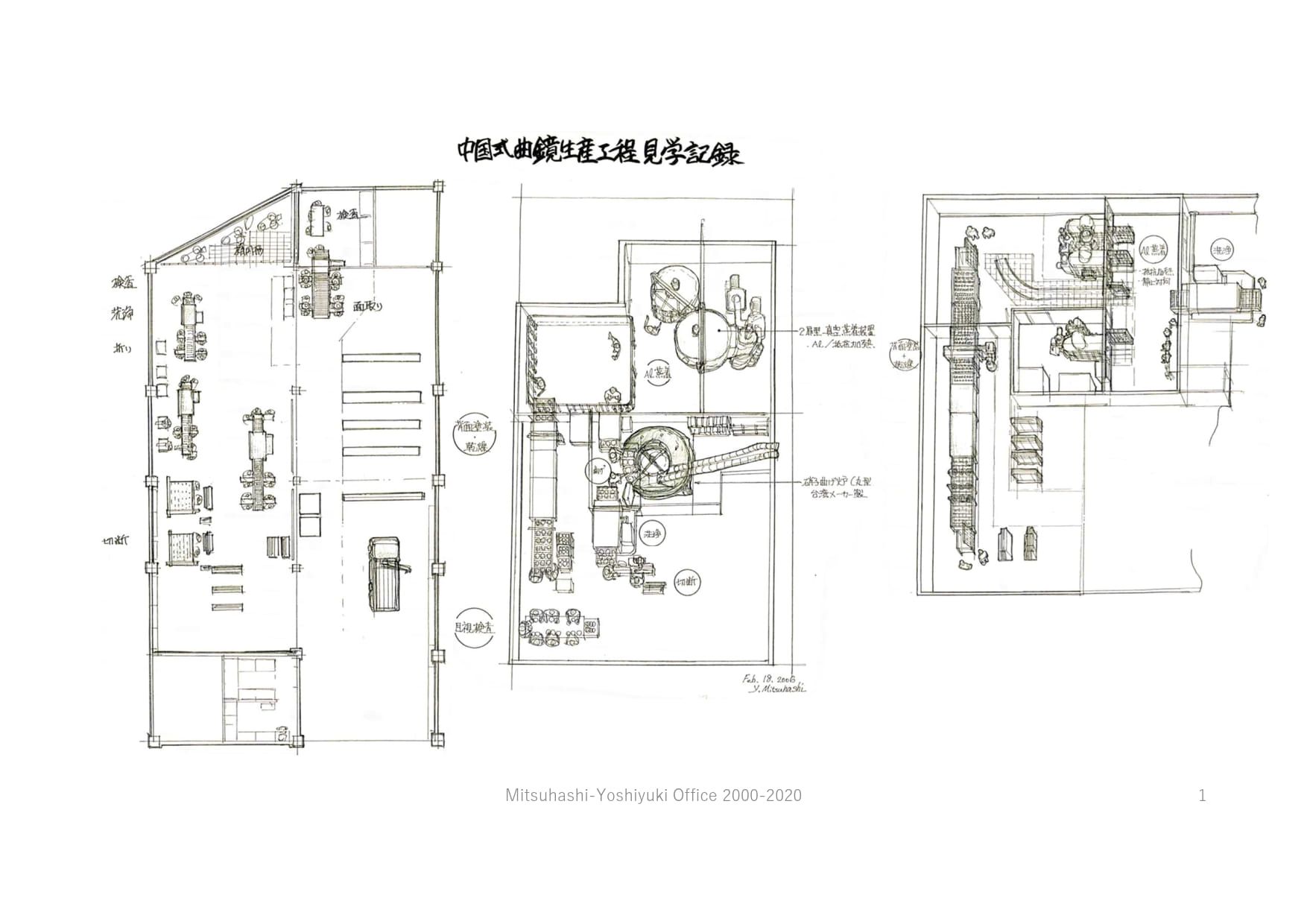
真空成膜設備が必要とされる分野を中心に、例えば、FPD & SEMICON、C-TOUCH & DISPLAY展示会は、東京ビックサイト、北京、上海、深圳、台北、ソウルで、また、ドイツで開催されるICCG (2014 Dresden, 2016 Braunschweig ) 等を定期的に見学しています。また、文献・特許調査、比較分析(解釈)を積極的に行います。
ご依頼のテーマをご相談ください。

中国・台湾の関連展示会では、写真撮影OKの場合、見学者の目線で出展全ブースを撮影したことも。同様、同種の展示会を定期的に見学調査しておくことで、変化・動向が視えてくることも。出来るだけ、現物を観察見学することに注力しています。
2024 ドイツ ドレスデン


コンサルティング

改造検討(問題解決、機能追加、等)、新規設計、技術の組合せ・編集設計等。結果は図解して提供します。コンサルティングは、2010年以降、台湾、韓国、中国、そして国内で経験しました。
また、スポットテーマにも対応させていただきます。

製造工程フロー対応の設備配置, AGV、複数階を有機的に連結する自動倉庫。バッファーの設置、メンテナンス、多品種少量、 生産能力の最大化対応。工場システムを俯瞰しながら、個々の工程設備がそのシステム適合型か否か?見直す設計作業。
製糸工場の外観図作成例

手描きで、完成まで3か月。工場内の物流を追いながら、ボイラー室と女工寮の位置関係、工程間の建屋の間に設けられた中庭の目的。採光と工程バランス調整の床面積増対応。除雪スペース等、レイアウトにも設備にも先人の知恵を発見して、圧倒されました。このストーリーは、海外の顧客の共感が得られます。
当社の3つの特徴
豊富な経験と専門技術力
基本は設備機構の構想設計です。より具体的に、具現化(図面化)可能な提案をします。過去の経験を起点にして、専門家からの助言、情報収集で得られる知識を総合しています。コンサルティングの場合は、図解報告・設計コンセプト図等を多用して、出来るだけ 具体的な提案をさせていただきます。
真空装置の設計は複合的な条件があります。駆動力導入の真空シール自由度、材質、電位、磁場、表面処理、パーティクル対策、分圧など、総合的な視点が必要です。時には、シュミレーションの専門家を巻き込んだり、試作テストを行うこともあります。

具体的な設計解を提案します

既存の設備の改造検討も対応可能です。もちろん、新規設備導入の場合もあるでしょう。建材用板ガラス表面への多層膜成膜設備のプラットフォームの寿命は30年以上です。成膜源を部分改造して 新規用途に対応させている設備技術が参考になります。
一方で、基材部品が小さくなって、更に治具跡NGなどの制約がある場合は、半自動化が必須の条件です。真空成膜技術と基材部品のハンドリング自動化対応が要求されています。製品寿命が短く、プロダクト・ミックスも要求されています。設備設計コンセプトに、どう折り合いを付けてゆくか?
また、部品加工業者の調査・ご紹介も可能です。これまでの海外顧客対応のコンサルティング経験を役立てて、台湾、韓国、中国、あるいはドイツのメーカーをご紹介できる可能性があります。アウトプット、ゴールを共有させていただければ、よりよいご提案ができるかもしれません。
専門技術者のネットワークを活用
複合的なテーマ、第三者の意見を加味する場合などは、それぞれの分野の実務経験者、専門技術者を巻き込みながら、アウトプットの完成度を上げます。更に、装置製作図面作成のために設計事務所(機械系、電気制御系)と協業して、詳細設計も対応可能です。

まずはお気軽に相談・お問合せください
受付時間:10:00~17:00
定休日:日曜・祝日
フォームでのお問合せは24時間受け付けております。
まずはお気軽にご連絡ください。

サービスの流れ

何をどうしたいのか?当方で対応可能か?別の提案ができるか?をお応えします。当方で対応可能な場合は、ゴールのイメージを共有させていただきます。
先ずは 打ち合わせ

個別テーマで、少しずつ範囲を広げましょう。当方の対応結果に お得感がでるか? を重視しています。
Out Put

継続した調査・検討を基に、根拠のある提案をしたい。展示会見学、特許調査は専門的な視点が有効です。それらを踏まえて、何か新しいものを創造する。難問・課題が新しいビジネスの種になるかもしれません。
料金

3Dイラストは、ご予算、作業の範囲で調整、ご相談しましょう。調査、コンサルティングも同様に、その内容、個別テーマ? 短期間、あるいは数年契約でも対応、ご相談します。効率の良い態勢で調整させていただきます。
真空成膜設備技術分野に従事して30年
三橋善之事務所 Mitsuhashi-Yoshiyuki Office
営業時間 10:00~17:00
休業日:日曜・祝日